à propos du "mode plan" tablette ou smartphone

Discutez ici de vos souhaits d'évolutions et de vos idées pour eedomus

à propos du "mode plan" tablette ou smartphone

Messagepar bigoudène1 » 15 Avr 2015 08:25

:wave:

J'ouvre un sujet sur le mode plan qui existe depuis quelques mois pour les tablettes ou smartphone.

Je dois avouer que jusqu'à aujourd'hui j'utilise surtout le mode liste, car pas encore eu le temps de me lancer dans l'aventure....

Mais voilà, la curiosité me titille et du coup je vais me lancer pour mettre mes deux tablettes (une sous androïd qui n'est utilisée que pour la gestion de l'eedomus au domicile, et un ipad2 qui me suit partout). Quant au smartphone (iphone), je ne vois pas trop l'utilité du mode plan (bah oui, quand on vieillit, la vue baisse :lol: :geek: ).

Donc je suis allée faire un tour sur la doc eedomus qui m'a permis de faire une petit cahier de charges.

Pour commencer, lorsque j'aurai mon nouvel ordinateur (ce qui ne devrait pas tarder), je vais télécharger sweethome 3D afin de faire un plan global de mon habitation pour que le mode plan soit vraiment réaliste.
Je sais que cette partie va me prendre du temps....
Après, il faudra mettre les icones dans le mode plan des tablettes.

Je viendrais mettre dans le sujet mes avancés, et si j'ai le temps (et la patience) j'essaierai de faire un tuto pour la mise en place du mode plan.

Si vous avez des suggestions ou des exemples de vos "modes plans", n'hésitez pas à les mettre.
bigoudène1
 
Messages : 123
Inscription : 26 Fév 2014
Localisation : Penn-ar-Bed (Finistère)

Re: à propos du "mode plan" tablette ou smartphone

Messagepar bigoudène1 » 15 Avr 2015 09:00

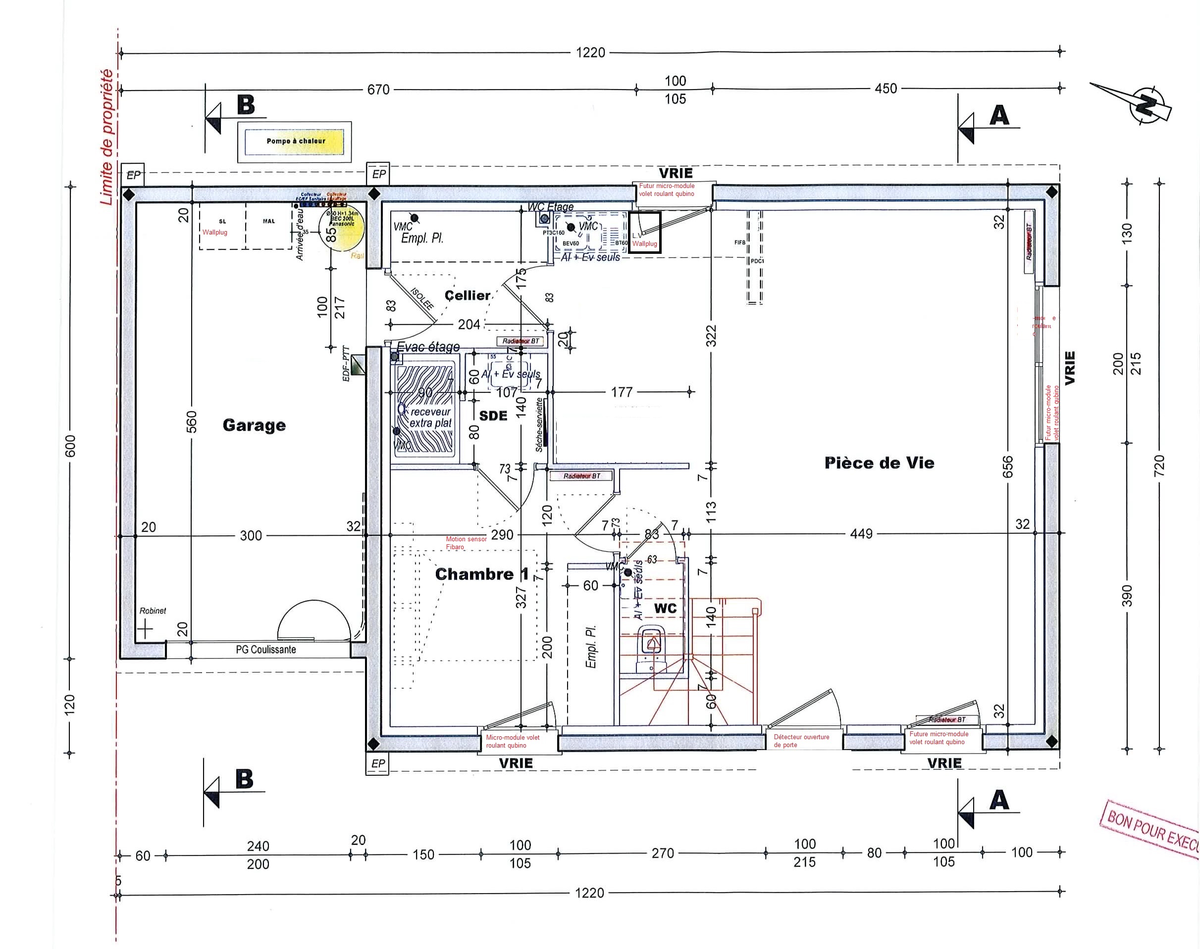
Pour commencer, voici les plans de la maison qui seront rapatriés sur sweethome 3D
Dessus, j'ai mis les différents modules et micro modules zwave.

Le rez de chaussée :
rez de chaussée.jpg
rez de chaussée.jpg (607.23 Kio) Consulté 11144 fois


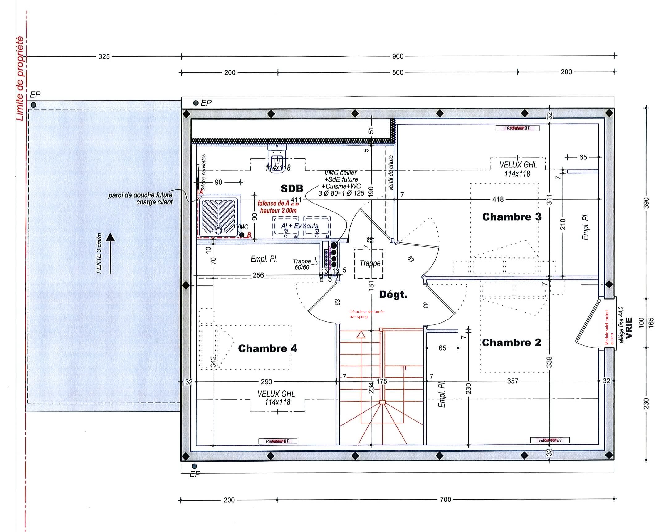
L'étage :
étage.jpg
étage.jpg (628.13 Kio) Consulté 11144 fois
bigoudène1
 
Messages : 123
Inscription : 26 Fév 2014
Localisation : Penn-ar-Bed (Finistère)

Re: à propos du "mode plan" tablette ou smartphone

Messagepar Nico33 » 15 Avr 2015 09:26

Sympa cette idée de partage pour en pourrait en aider certains à se lancer.
J'ai fait mes plans avec sweethome 3D. C'est vraiment un bon soft et gratuit !
C'est le détail qui prend du temps. Monter les murs sur les plans est assez rapide.
C'est plus long de trouver le bon mobilier etc ...
Mais le résultat est juste top !
Nico33
 
Messages : 1013
Inscription : 14 Juin 2013

Re: à propos du "mode plan" tablette ou smartphone

Messagepar bigoudène1 » 24 Avr 2015 10:20

:wave:

Quelques nouvelles du mode plan.
Depuis le début de la semaine, j'ai un nouvel ordinateur.
Du coup, j'ai téléchargé sweethome3d, et j'ai commencé à faire le plan de la maison.
c'est long à faire :shock:
Pour commencer, je vais faire un plan minimum avec juste quelques meubles....
Ce soir, je vous mettrais des photos de mes débuts, il faudra être indulgents, je n'ai pas une âme de dessinatrice ni d'architecte d'intérieur :mrgreen: :lol:
bigoudène1
 
Messages : 123
Inscription : 26 Fév 2014
Localisation : Penn-ar-Bed (Finistère)

Re: à propos du "mode plan" tablette ou smartphone

Messagepar vva » 24 Avr 2015 10:38

je trouve que ça surcharge le plan de mettre les meubles.

Pour ma part j'ai mis uniquement les murs intérieurs et extérieurs (C'est très minimalisme).

J'ai même enlevé les ouvertures extérieures et je l'ai ai remplacées par les icônes d'état (ouvert / fermé).

Ah, les goût et les couleurs ...
vva
 
Messages : 386
Inscription : 12 Juin 2013

Re: à propos du "mode plan" tablette ou smartphone

Messagepar bigoudène1 » 24 Avr 2015 12:35

vva a écrit:je trouve que ça surcharge le plan de mettre les meubles.

Pour ma part j'ai mis uniquement les murs intérieurs et extérieurs (C'est très minimalisme).

J'ai même enlevé les ouvertures extérieures et je l'ai ai remplacées par les icônes d'état (ouvert / fermé).

Ah, les goût et les couleurs ...


A essayer. Je vais enregistrer un autre plan suivant ta façon, et je verrai ce qui me plait le plus.

Mais c'est vrai, tu as raison, le but n'est pas de faire un plan pour l'aménagement, mais surtout pour actionner les divers modules.
bigoudène1
 
Messages : 123
Inscription : 26 Fév 2014
Localisation : Penn-ar-Bed (Finistère)

Re: à propos du "mode plan" tablette ou smartphone

Messagepar bigoudène1 » 30 Avr 2015 14:53

:wave:

Bon je viens vous faire un petit topo.
pas évident de faire le plan 3d des pièces, je ne suis vraiment pas douée :oops:
ce que j'avais fait ne me plaisait pas (pas assez réaliste), oui je sais comme a dit "vva", les meubles et tout le reste surcharge le plan. N'empêche, que je voulais un plan au plus proche de la réalité (c'est mon côté maniaque :roll: ).
Donc le rendu ne me plaisait pas du tout, du coup, j'ai pris des photos des pièces concernées pour voir ce que ça pouvait donner. Comme ça rendait pas trop mal, j'ai décidé d'attribuer une photo à une pièce pour le mode plan. Jusque là tout allait bien.
ça commencé à se gâter quand j'ai mis les icônes dans le plan. Impossible de rendre le fonds de l'icône transparent. Je peux changer la couleur, mais pas la transparence :twisted:
Je décide de sortir de l'application et quelques temps après je retourne dessus, et là, surprise, je n'ai plus ma photo de fond :shock: :shock:
Est ce que j'ai loupé quelque chose ? (mon application est sur un Ipad2)
bigoudène1
 
Messages : 123
Inscription : 26 Fév 2014
Localisation : Penn-ar-Bed (Finistère)

Re: à propos du "mode plan" tablette ou smartphone

Messagepar anne-marie » 30 Avr 2015 18:18

Bonsoir Bigoudène
J'ai aussi laissé tomber le plan, déjà parce que mes périphériques ne sont pas disposés de manière très équilibrée (ça surchargerait certaines vues) et aussi à cause de la surface qui est ingérable. Même si ce ne sont pas forcément des zone habitables, c'est très grand. Surtout quand il faut faire le ménage :D
Bref, la photo est un bon compromis.
Donc j'ai fait comme toi sur mon note2 et je n'ai pas perdu l'image de fond.
PS: Moi, aussi je trouverais sympa que les icones puissent être transparents
Netatmo - Nabaztag2 - Karotz - Mirror - caméras IP - Zwave - RFXCOM - zigate - ecodevice - Enocean - orvibo - connexoon- google Home - Echo - yeelight etc....
anne-marie
 
Messages : 2473
Inscription : 19 Fév 2014
Localisation : 77

Re: à propos du "mode plan" tablette ou smartphone

Messagepar anne-marie » 01 Mai 2015 09:51

Je viens d'essayer sur l'IPad mini de mon mari.
Et je n'ai effectivement pas pu régler la transparence. Enfin bon je n'ai pas pu trop insister car l'Ipad était déchargé.
Je corrige ce que j'ai dit plus haut. La transparence fonctionne impec ainsi que sur ma tablette chinoise :D
Netatmo - Nabaztag2 - Karotz - Mirror - caméras IP - Zwave - RFXCOM - zigate - ecodevice - Enocean - orvibo - connexoon- google Home - Echo - yeelight etc....
anne-marie
 
Messages : 2473
Inscription : 19 Fév 2014
Localisation : 77

Re: à propos du "mode plan" tablette ou smartphone

Messagepar bigoudène1 » 03 Mai 2015 16:09

anne-marie a écrit:Je viens d'essayer sur l'IPad mini de mon mari.
Et je n'ai effectivement pas pu régler la transparence. Enfin bon je n'ai pas pu trop insister car l'Ipad était déchargé.
Je corrige ce que j'ai dit plus haut. La transparence fonctionne impec ainsi que sur ma tablette chinoise :D


Bonjour Anne-marie,

comment as tu fais pour la transparence ?

Sinon voici un essai réalisé avec sweet home 3D
chbre-parents3.png
chbre-parents3.png (485.24 Kio) Consulté 10959 fois
bigoudène1
 
Messages : 123
Inscription : 26 Fév 2014
Localisation : Penn-ar-Bed (Finistère)

Re: à propos du "mode plan" tablette ou smartphone

Messagepar anne-marie » 03 Mai 2015 16:32

Bonjour Bigoudène.
J'y arrive sur mon note2 et tablette android mais rien à faire sur l'Ipad.
Quand je met de la transparence, c'est l'icone tout entier qui devient transparent, donc il disparait.
C'est chouette Sweet Home 3D dis donc! :P
Honnêtement, je ne suis pas emballée par l'appli Eedomus. Soit c'est trop gros, soit c'est trop petit. On ne peut pas modifier le texte, juste le supprimer. Quand on passe de portrait à paysage, les icones sont déplacés. L'image de fond est déformée et non recadrable etc...
L'interface web n'est pas top non plus mais un peu mieux que l'appli. C'est le gros point négatif de l'Eedomus.
Je sais, on ne peut pas tout avoir; une team réactive et une interface toute jolie :lol:
Netatmo - Nabaztag2 - Karotz - Mirror - caméras IP - Zwave - RFXCOM - zigate - ecodevice - Enocean - orvibo - connexoon- google Home - Echo - yeelight etc....
anne-marie
 
Messages : 2473
Inscription : 19 Fév 2014
Localisation : 77

Re: à propos du "mode plan" tablette ou smartphone

Messagepar bigoudène1 » 03 Mai 2015 16:39

anne-marie a écrit:Bonjour Bigoudène.
J'y arrive sur mon note2 et tablette android mais rien à faire sur l'Ipad.
Quand je met de la transparence, c'est l'icone tout entier qui devient transparent, donc il disparait.
C'est chouette Sweet Home 3D dis donc! :P
Honnêtement, je ne suis pas emballée par l'appli Eedomus. Soit c'est trop gros, soit c'est trop petit. On ne peut pas modifier le texte, juste le supprimer. Quand on passe de portrait à paysage, les icones sont déplacés. L'image de fond est déformée et non recadrable etc...
L'interface web n'est pas top non plus mais un peu mieux que l'appli. C'est le gros point négatif de l'Eedomus.
Je sais, on ne peut pas tout avoir; une team réactive et une interface toute jolie :lol:



Pour la transparence, je me disais que je n'étais pas douée :lol:
c'est vrai que l'appli n'est pas trop top. Y a t'il une autre possibilité ?
Je crois qu'il va falloir attendre un certain temps pour avoir une bonne appli
bigoudène1
 
Messages : 123
Inscription : 26 Fév 2014
Localisation : Penn-ar-Bed (Finistère)

Re: à propos du "mode plan" tablette ou smartphone

Messagepar enr37 » 03 Mai 2015 17:07

Pas douéE ? On aurait donc une 2e fille sur le fofo ? Champagne !!
actionnaire de photoshop. partageur des 450 icones sur abavala et dans votre box.
Le savoir ne vaut que s'il est partagé par tous !
enr37
 
Messages : 1362
Inscription : 06 Juin 2013
Localisation : 37

Re: à propos du "mode plan" tablette ou smartphone

Messagepar bigoudène1 » 03 Mai 2015 18:46

enr37 a écrit:Pas douéE ? On aurait donc une 2e fille sur le fofo ? Champagne !!


Eh oui enr37, il y a une deuxième fille sur le forum :D
bigoudène1
 
Messages : 123
Inscription : 26 Fév 2014
Localisation : Penn-ar-Bed (Finistère)

Re: à propos du "mode plan" tablette ou smartphone

Messagepar anne-marie » 03 Mai 2015 19:10

C'est pas possible qu'on ne soit que 2 filles ! Hein Bigoudène? :D
Sortez de vos cachettes les filles ! :lol:
Netatmo - Nabaztag2 - Karotz - Mirror - caméras IP - Zwave - RFXCOM - zigate - ecodevice - Enocean - orvibo - connexoon- google Home - Echo - yeelight etc....
anne-marie
 
Messages : 2473
Inscription : 19 Fév 2014
Localisation : 77

Re: à propos du "mode plan" tablette ou smartphone

Messagepar bigoudène1 » 04 Mai 2015 08:35

anne-marie a écrit:C'est pas possible qu'on ne soit que 2 filles ! Hein Bigoudène? :D
Sortez de vos cachettes les filles ! :lol:


Tu as raison anne-marie, il doit y en avoir d'autres. On va lancer un avis de recherche :

Avis de recherche des fifilles sur le fofo :mrgreen:
bigoudène1
 
Messages : 123
Inscription : 26 Fév 2014
Localisation : Penn-ar-Bed (Finistère)

Re: à propos du "mode plan" tablette ou smartphone

Messagepar dplein » 04 Mai 2015 22:28

enr37 a écrit:Pas douéE ? On aurait donc une 2e fille sur le fofo ? Champagne !!


T'avais jamais fait attention qu'il y avait au moins 2 femmes sur le forum ?????
Irradié.... RAC v2
dplein
 
Messages : 1683
Inscription : 28 Oct 2012
Localisation : Lorraine


Retour vers Suggestions

Qui est en ligne ?

Utilisateurs parcourant ce forum : Aucun utilisateur inscrit et 21 invité(s)